Held at: | Private collection |
Reference: | RS |
Source: | Original Document |
Title: | Digital Archive - Sale particulars: Pontynys Mill |
Place name: | Longtown |
Date: | 2014 |
Description:
Sale particulars for Pontynys Mill were issued by the agent, Hayes
Pontynys Mill, Longtown, Herefordshire
Guide Price £1,200,000

A Rare Opportunity to Purchase a Substantial Stone Mill House with Cottage and Grade II Listed Water Mill with 16.44 Acres of Grounds in Longtown comprising:
THE PROPERTY
Entrance Hall with magnificent flagstone floor
Charming Kitchen with AGA; adjoining utility with pantry
Large Dining Room with wood burning stove
Sitting Room with stove and shuttered sash windows
Study/ Snug with shuttered sash windows
Spacious Landing leading to Four Bedrooms
En-Suite to master bedroom; Family Bathroom
Second floor Hobby Room / Fifth Bedroom and extensive storage
OUTSIDE
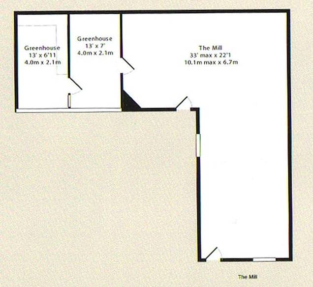
19th Century Mill; Iron and Wood Water Wheel in situ
Charming Detached One Bedroom Stone Cottage
Double Carport and separate Garage; Log Store
New Build Studio / Workshop with water and electricity
Walled Courtyard, Lawns, Orchard and Kitchen Garden
Single Bank Fishing Rights on the River Monnow
14 Acres of Wildflower Meadows
THE SITUATION
Peaceful rural location on the banks of the River Monnow
Longtown Shop & Post Office, Primary School and Pub nearby
Catchment Area for Fairfield School, Peterchurch
Rail Links, 10 miles Abergavenny, 17 miles Hereford
Motorway 24 miles M50; 26 miles M4 at Newport
PRACTICALITIES
Council Tax Band E, Herefordshire Council
Mains water and electricity
Central heating; oil – House; electric – Cottage
Private drainage; shared: House and Cottage
Broadband available






















Observations:
Additional photographs of the water wheel and Mill machinery at Pontynys Mill can be found here . There are also numerous other records pertaining to the mill in the website database, accessible via the search engine.
Ref: rs_lon_0271
